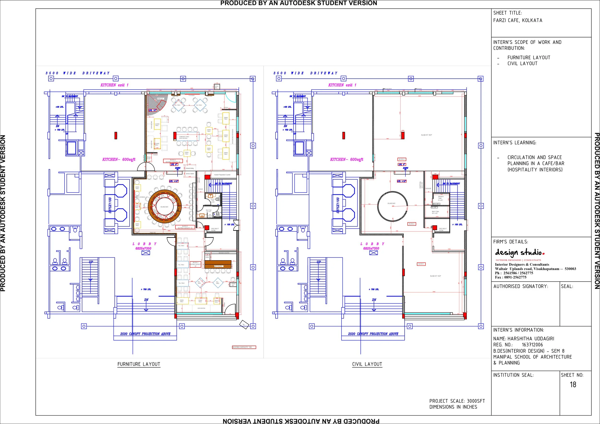
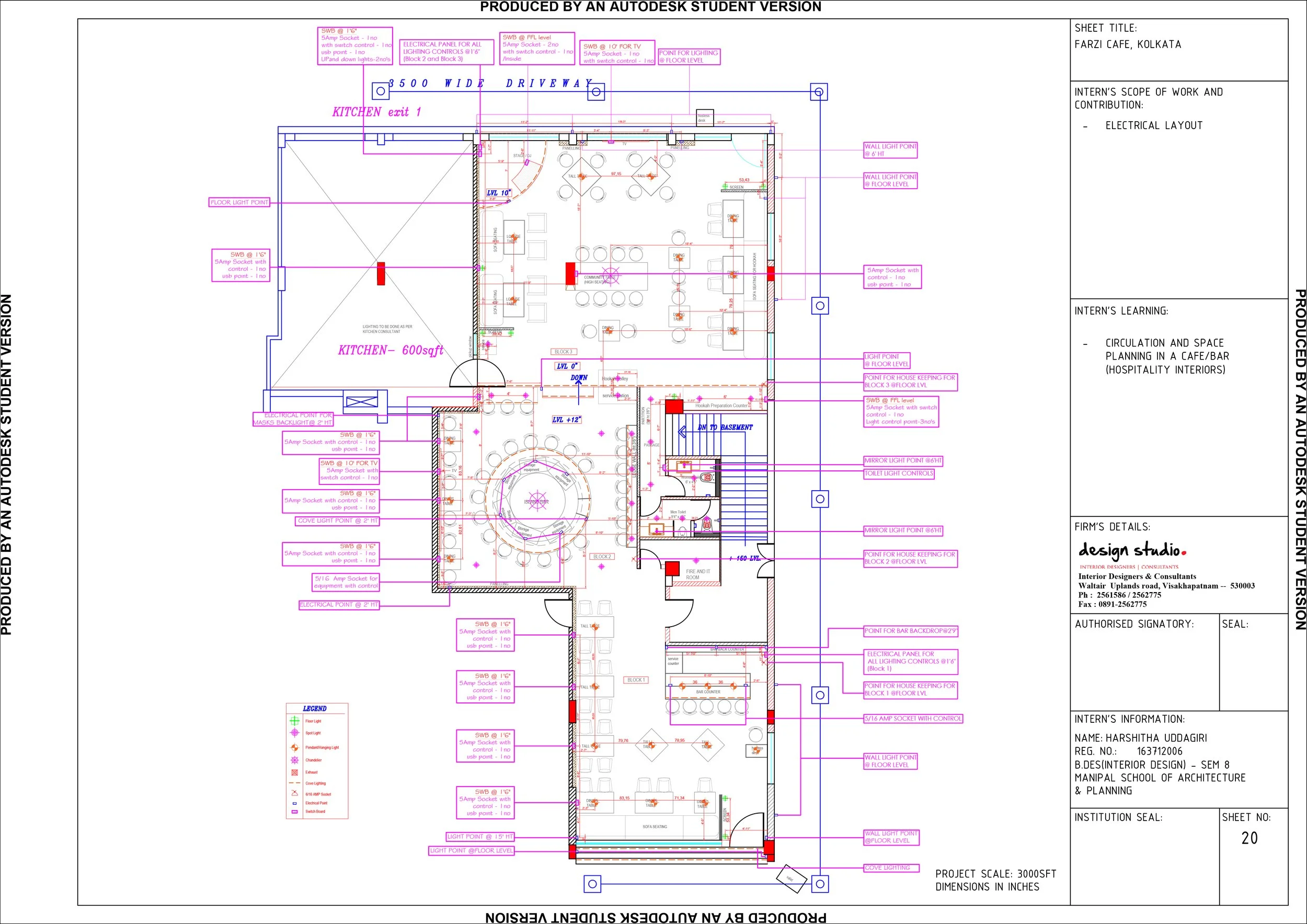
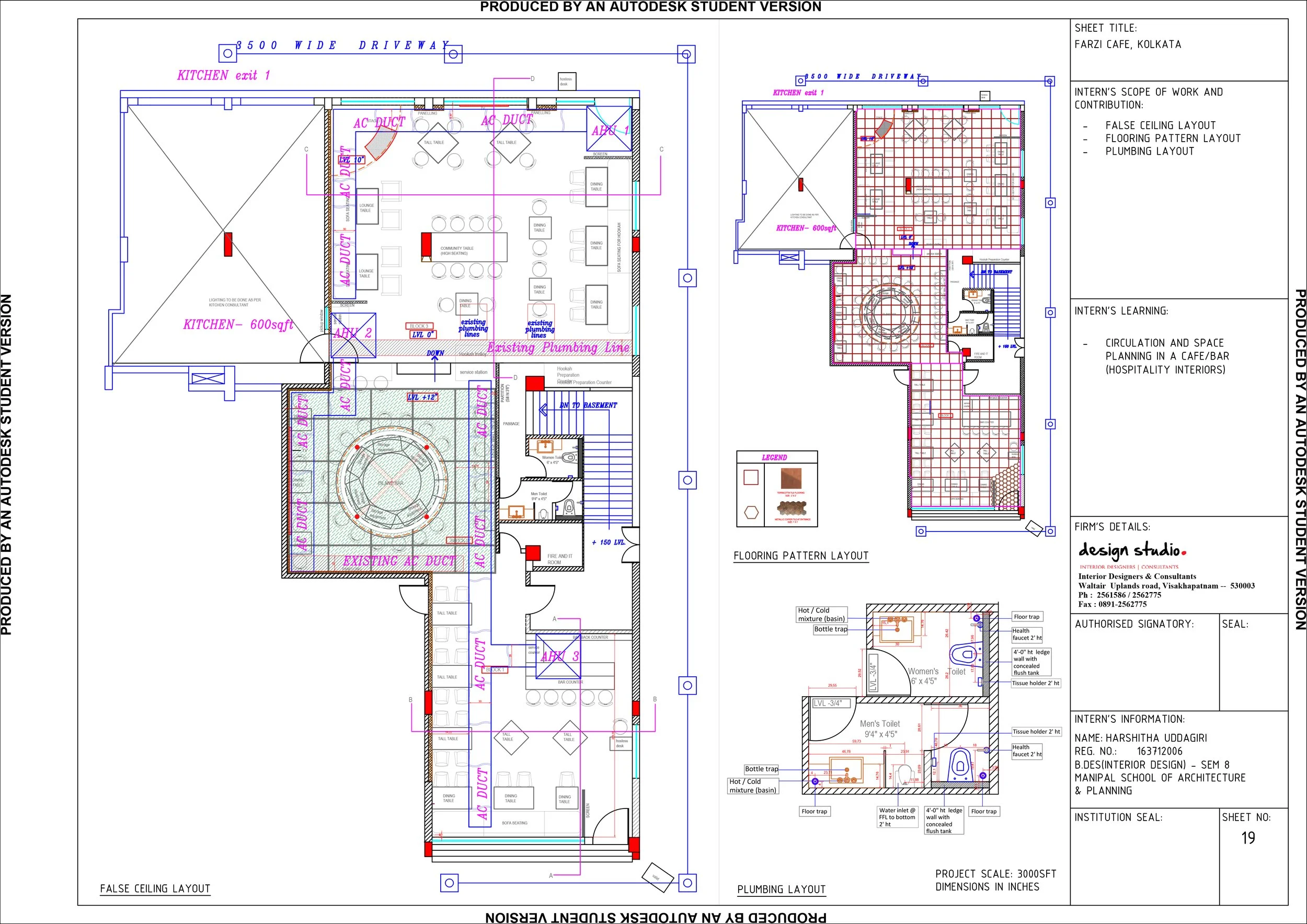
FARZI CAFE
2020
JUNIOR INTERIOR DESIGNER | DESIGN STUDIO, Visakhapatnam India
The concept of FARZI CAFÉ revolves around a hip new image of the city of joy for the Instagram generation. Every wall is inspired by different elements of Kolkata,
*Project completed under the firm Design Studio.









